Completion Date

2007

Location

Research Triangle Park, NC

Client

Credit Suisse

Size

205,250 sf

Photography

Copyright Stanley Capps Photography

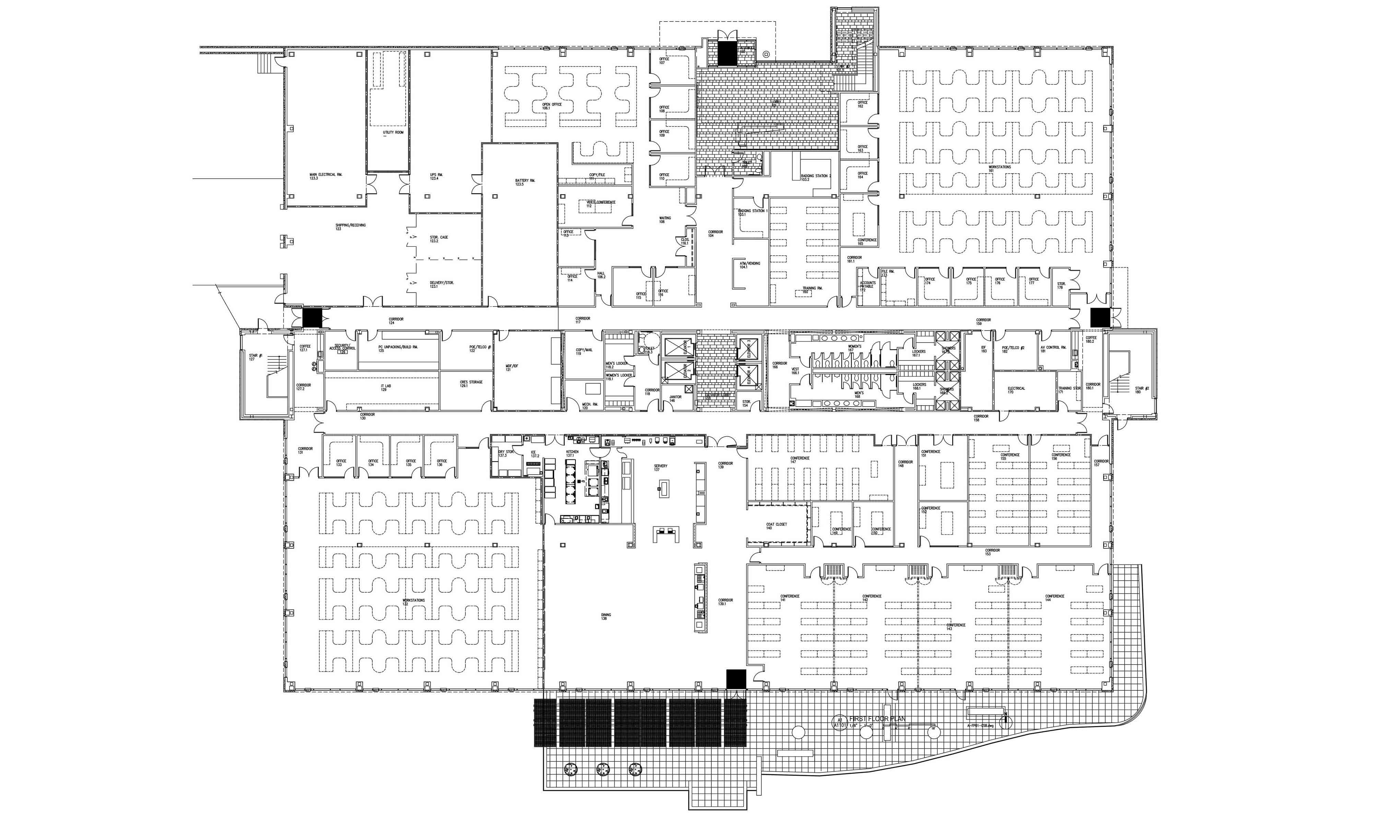
Credit Suisse Center of Excellence Building I

O’Brien Atkins teamed with Koll Development Corporation for the design of Credit Suisse’s first Research Triangle Park free-standing office facility.  Sited on 80 acres, the Center of Excellence houses the Investment Banking Division. The layout includes open and closed offices, executive spaces, conference rooms, training center, back office operations, reception areas, cafeteria, redundant electrical systems for critical spaces, redundant emergency generators and fuel services, redundant HVAC systems for critical spaces, mechanical and electrical monitoring and control systems. The parking lot was designed to have 400+ trees on site to shade it and to minimize heat from the asphalt parking surface.  The building is LEED® Certified.